

楼盘名称:杭州颐和山庄
楼盘特点:
参考单价: 别墅 31000 元/㎡
楼盘总价:别墅 450 万元/套
物业类型:住宅,别墅
开发商:杭州青城房地产开发有限公司
楼盘地址:科技大道3608号
售楼处电话:0571-88582897
:最低首付
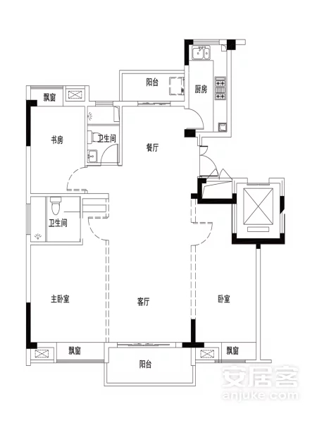
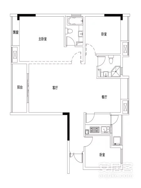
楼盘户型:3室户型
最新开盘:2017-07-22
交房时间:2018-05-31
售楼处地址:科技大道杭州颐和山庄销售中心
预售许可证:临房售许字(2016)第253-255号;临房售许字(2016)第209-215号;
建筑类型:独栋别墅,花园洋房
产权年限:住宅:70年 别墅:70年
容积率:别墅:1.01
绿化率:30.00%
规划户数:389户
楼层状况:花园洋房6+1层、低层3层、小高层9-11层
工程进度:在建中,竣工时间:2018-05-31
物业管理费:别墅:2.8元/m²/月
物业公司:颐和物业
车位数:(地上:979 个)2018年1月15日讯:颐和山庄在售别墅,户型面积为148㎡,约剩下两三套房源,总价约450万/套,预计今年三月份会加推洋房和别墅,具体开盘信息待定,项目位于青山湖科技城版块的核心位置,南临科技大道,以上信息仅供参考,详情咨询售楼处:0571-88582897