

基本信息
| 综合评价: | 4.2 | ||
| 楼盘名称: | 融创公园壹号 | 建成年代: | |
| 物业类型: | 花园洋房 | 项目特色: | |
| 建筑类型: | 板楼 , 低层 | 装修标准: | |
| 产权年限: | 70年 | 装修情况: | |
| 开发商: | 北京政融大道地产有限公司 | 预约电话: |
交通信息
| 轨道交通: | 邻近地铁4号线天宫院站、地铁8号线瀛海站、 |
| 公交路线: | 地铁19号线(规划中)、21号线(规划中)新机场线(规划中)磁各庄站 |
| 交通方式: | 公交线路 快速直达专线211路、841路、940路、兴29、兴31、兴50、兴57、兴63,格林云墅或首地浣溪谷站; 自驾路线 京开、大兴机场高速、京台高速、京沪高速,上六环,从六环磁各庄桥出口下六环路,沿南中轴路向南行驶1千米,右转进入海鑫路直行300米,左转进入盛顺街直行200米左手边即到 |
规划信息
| 占地面积: | 50812.99平方米 | 建筑面积: | 161471.07平方米 |
| 容积率: | 1.8 | 绿化率: | 35% |
| 停车位: | 配比1:1.2 | 楼栋总数: | 15 |
| 总户数: | 1008 | 物业公司: | 融创物业服务集团有限公司 |
| 物业费: | 暂无数据 | ||
| 看房电话: | 010-89999677 | ||
| 周边配套: | 学校:项目配建优质国际双语幼儿园,北侧紧邻芦垡小学,5公里范围内魏善庄第一幼儿园、魏善庄第一中心小学、孙村中小学、北京市广渠门中学分校; 商业:成熟的社区商业遍布,格林云墅、首创悦都汇风情商业街,周边10公里范围内配套资源丰富,紧邻天宫院、黄村、义和庄、西红门、亦庄、总部基地6大商圈,拥有着休闲、购物、娱乐为一体的成熟商业氛围。如:龙湖时代天街、天宫院凯德mall、荟聚、宜家家居亚洲旗舰店、王府井百货、泰禾里、沃尔玛山姆会员店、大族广场、力宝广场。 医院:三甲类医院包括首都医科大学大兴医院(大兴区人民医院)、广安门医院南区(大兴中医院)、亦庄北京同仁医院,规划引入北大医院、北京儿童医院、东方医院。" 公园:孙村公园 | ||
楼盘简介
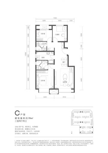
融创公园壹号是融创中国和市政公用集团联手打造的纯洋房住区,项目地处北京南中轴大兴新城、亦庄新城、临空经济区三大产业新城黄金交汇地带,距离大兴国际机场高速约1.8km,享新国门腾飞价值,同时紧邻孙村公园,收藏约47公顷城市生态绿地。项目脉承“壹号系”品质基因,规划共1栋配建幼儿园、14栋(建面约)74-139㎡八层纯洋房,携手一线景观设计团队打造新中式特色园林,引入融创全龄段归心社区配套,以纯粹的低密洋房生活,礼献北京的城市共创者。
看房预约电话:010-89999677(提前电话预约享额外99折优惠!)